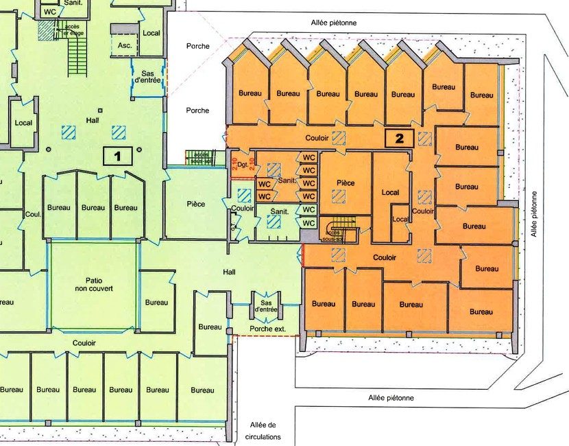
Description
Ensemble de bureaux d'une surface de 394 m² avec 40 places de parking privatives décomposé comme suit ;
- 394 m² de bureaux à 1500 euros le m²
- 40 places de parking privatives à 5000 euros
Possibilité de ne pas prendre la totalité des places.
Idéal organisme de formation / siège social / direction régionale
Prestations de qualités et récentes
Situation stratégique en bordure de rocade de contournement de DIJON.
Accès autoroute A6 - LYON / A39 BESANCON - STRASBOURG / A38 PARIS
DIJON TGV à 20 minutes
Ligne Bus réseau DIVIA
Aéroport DIJON à 15 minutes et DOLE à 35 minutes
Accès ERP - Plain pied.
Site sécurisé.
Chauffage gaz et climatisation réversible
Équipements et confort
Bilan sur les performances énergétiques du bien
Les informations sur les risques auxquels ce bien est exposé sont disponibles sur le site Géorisques : www.georisques.gouv.fr
Informations financières
Taxe foncière : 6 416 €
Localisation et points d'intérêts
Êtes-vous intéressé(e) par ce bien ?
Laissez un message
Votre contact
